Skip to main content
T.R. Smith, Associate Broker
SOLD
$725,000
Date 03/07/2025

260 Logan Ave
Loveland, CO 80537

Single Family
Residence
4
Beds
1
Baths
+
1 Three Qtr
1,976
Sqft
1.21
Lot Size
Courtesy: Michal Jaques - eXp Realty LLC, 9706825302; Phone: 8884402724
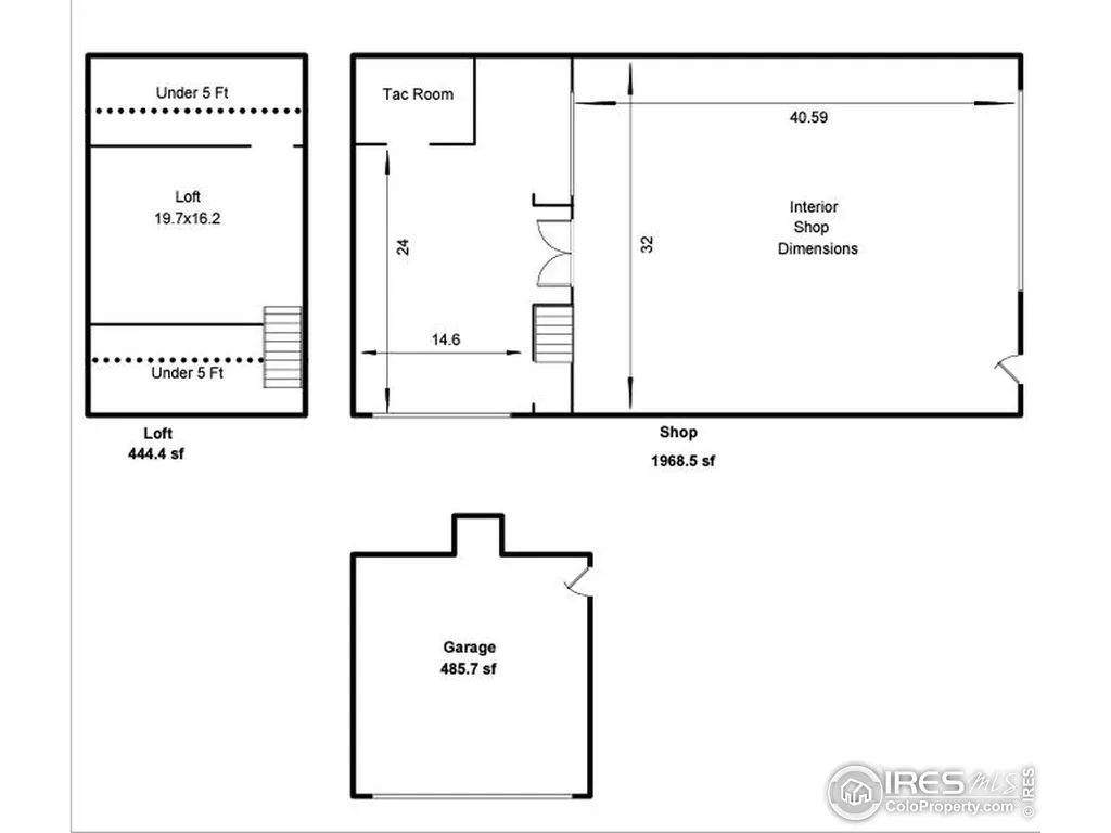
Incredible charm with tons of potential! Your new home with a huge shop sits on ~1.2 acres in the heart of Old Town Loveland. This 4 bed/2 bath home is a great mix of updated space and vintage features. From the classy kitchen with stainless appliances, to the sprawling great room, cozy den and separate dining area, you'll find plenty of elbow room and space to entertain on the main level. There, you'll also enjoy two bedrooms and a bath. Upstairs features the other two bedrooms, including the newly updated primary suite with a walk-in closet. There's plenty of space to relax in both the fully enclosed patio and an additional covered patio. Enjoy large trees and mature shrubbery in your extremely private back yard. Detached two-car garage! Included in the sale is the back parcel where you'll find the huge 55' x 32' shop with over 1,900 square feet -- and a loft for additional storage. As with many old homes, there's work to be done, but this is a terrific find for a buyer who loves lots of space, and has vision to make a wonderful property their own!
1023198
Single Family, Farmhouse
4
Larimer
1 Full/1 Three-Qtr
1907
1.21 Acres
Public Water
Frame, Wood Siding
Public Sewer
Loading...
Data Provided by Onboard
Walk Score measures the walkability of any address, Transit Score measures access to public transit on a scale of 1-100.

Walk Score

Transit Score

Courtesy: Michal Jaques - eXp Realty LLC, 9706825302; Phone: 8884402724
IRES- Ft Collins, CO  MLS logo

Information source: Information and Real Estate Services, LLC. Provided for limited non-commercial use only under IRES Rules © Copyright IRES.

Listing information is provided exclusively for consumers’ personal, non-commercial use
and may not be used for any purpose other than to identify prospective properties consumers may be interested in purchasing.

This content last refreshed on 2/10/2026 11:16 PM CST. Some properties which appear for sale on this web site may subsequently have sold or may no longer be available.
Information is deemed reliable but is not guaranteed.